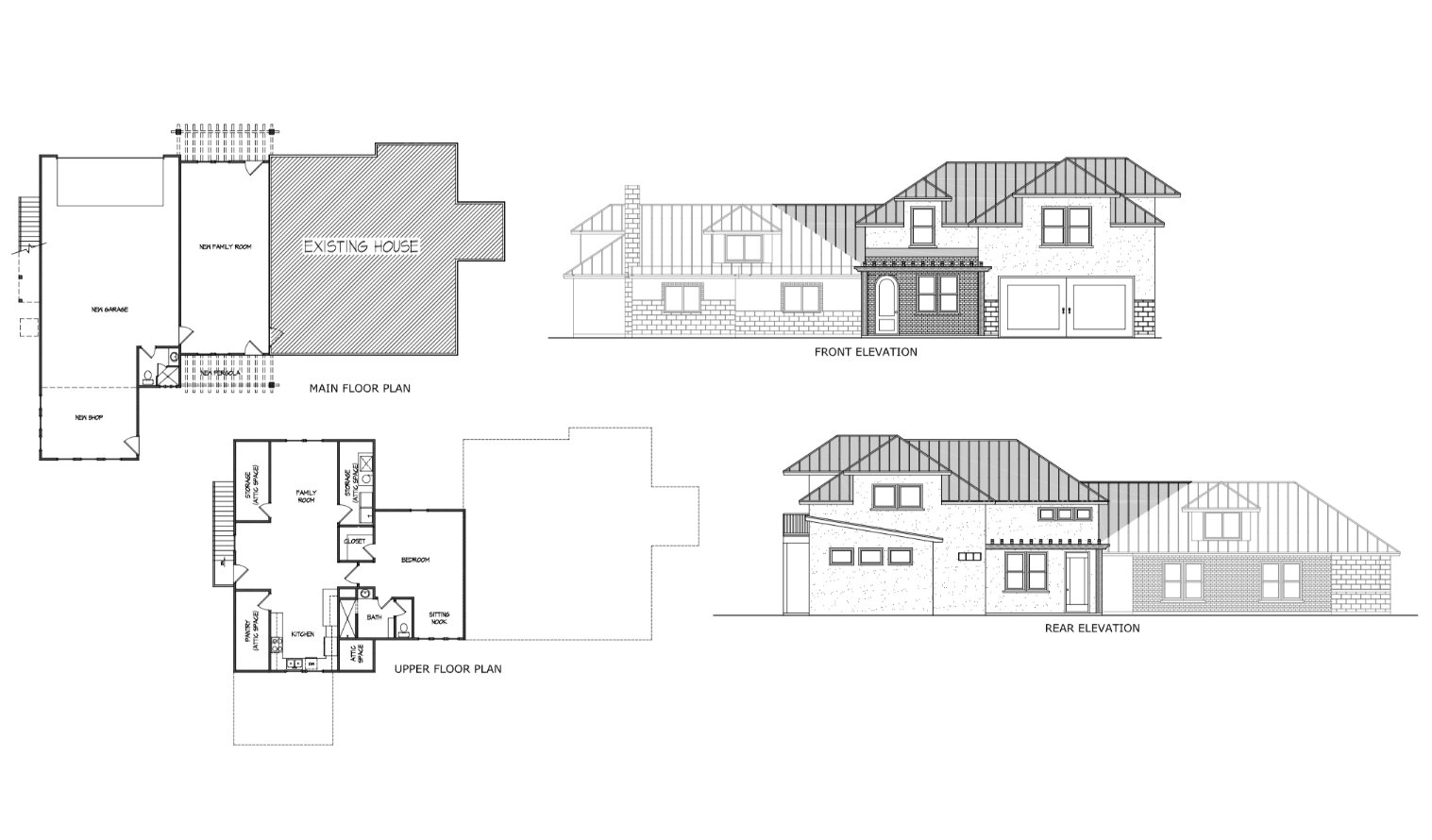
At Brian Hadley Drafting & Design, we create custom home plans tailored to your lifestyle, budget, and lot. Our services include floor plans, building elevations, residential site plans, and electrical layout plans, all designed to meet local codes and permit requirements. We also specialize in energy-efficient home design, CAD drafting for remodels or new construction, and home additions and remodel planning. Whether you’re a homeowner, contractor, or developer, we provide detailed, permit-ready drawings with a focus on function, curb appeal, and expert support.
Photo Gallery
|
|
Brian Hadley Drafting & Design



Comments